/
【完成予想図】こちらの物件が少しでも気になるようでしたら、お気軽にお問合せください。人生でいちばん大きなお買い物ですので、ゆっくりご見学ください。ネット上の画像と実際の見学では、リアル感がまるで違います。
- 価格
- 5,088万円
- 間取り
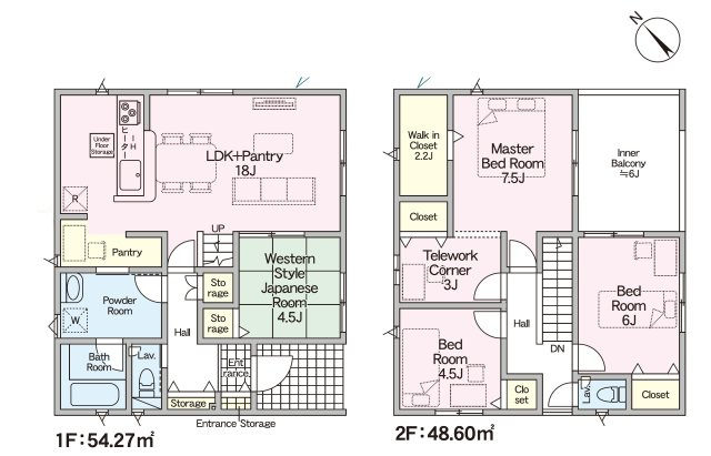
- 4LDK
- 土地面積
- 148.66㎡
- 建物面積
- 102.87㎡
- 築年月
- 2025年11月(予定)
- ※事前に必ずお問い合わせください
- ■ご案内方法
お客様の専属担当がご自宅までの送迎や最寄駅までの送迎も行います。
又、弊社までご来店して頂きご案内も可能です。
お客様無料駐車場もご用意しておりますのでお気軽にお車でもご来店下さい。 -
バストイレ別
-
室内洗濯機置場
-
TVモニタ付きインターホン

リビング
キッチン
風呂
寝室
外観- 販売戸数
- 2戸
- 総戸数
- 2戸
- 間取り / 詳細
- 4LDK
LDK 18.0帖 1室/和室 4.5帖 1室/洋室 7.5帖 1室/洋室 6.0帖 1室/洋室 4.5帖 1室/洋室 3.0帖 1室
4LDK+WIC+テレワークルーム - 向き
- 南
- 建物面積(坪数)
- 102.87㎡(31.11坪)
- 土地面積(坪数)
- 148.66㎡(44.96坪)
- 建ぺい率 /
容積率 - 60%/200%
- 築年月
- 2025年11月(予定)
- 駐車場 /
月額料金 - 有(4台) -
- 土地権利
- 所有権
- 土地
(敷金 / 保証金) - - / -
- 建物構造
- 木造 / 2階建
- 傾斜地部分面積
- -
- 路地状敷地
- -
- 私道負担面積
- -
- セットバック
- 無
- 高圧線下面積
- -
- 施工会社
- -
- 用途地域
- 第一種住居
- 地目 / 地勢
- 宅地 / 平坦
- 接道状況
- 一方(南西 公道 8.0m)
- 国土法届出要否
- 不要
- 都市計画
- 市街化区域
- 総区画数 /
販売区画数 - 2区画/2区画
- 現況
- 未完成
- その他
法令上の制限 - 法第22条区域
- 取引態様
- 仲介
- 引渡し
- 2025年11月下旬
- 取引条件の
有効期限 - 2025年11月29日
- 設備条件
-
- 建設住宅性能評価書付 / カードキー / 現地見学会 / 室内洗濯機置場 / フローリング / バルコニー / 公営水道 / 公共下水 / 二重サッシ / IHクッキングヒーター / コンロ2口以上 / システムキッチン / コンロ3口 / バス・トイレ別 / 浴室1坪以上 / 床下収納 / ウォークインクロゼット / TVモニタ付インターホン / 宅配ボックス / 複層ガラス / ディンプルキー
- 設備(その他)
-
-
-
- 物件番号
- 98610961
- 管理コード
- △
- 建築確認番号
- 第R07SHC113700号
- 情報更新日
- 2025年11月15日
- 次回更新予定日
- 2025年11月29日
- 備考
- 福岡市立玄洋小学校が徒歩14分のところにあり、お子様の通学も便利です。TVインターホン付きでお子様のお留守番も安心です。こちらの新築戸建てなら、気分爽快に新生活をスタートできます。福岡市西区にあるこちらの一戸建てに関して、何かご不明な点などがございましたら、ぜひお問い合わせ下さい。内覧予約なども承っております。
-
駅
九大学研都市
1564m(20分)
- 月々の支払額
- 9.6円
- 購入希望物件価格
-
万円
- 頭金
-
万円
- 金利
-
%
- 返済額(ボーナス1回分)
-
万円
- 返済期間
-
年
現地見学会
日時
2025年10月1日 ~ 2025年12月31日 09:00 ~ 18:00
物件の特徴
セールスポイント
玄洋小学校まで徒歩約14分。玄洋中学校まで徒歩約13分。オール電化住宅。駐車並列4台可能。
ポイント
TVモニタ付インターホン シューズボックス システムキッチン バス トイレ別 浴室1坪以上
担当者のコメント
パノラマ画像
基本情報
設備条件
その他
周辺施設
支払いシミュレーション
※ボーナスは自動で年2回分で計算されます。
近隣の物件
福岡市西区今宿1丁目第4-2棟(1号棟)
5,088万円
-
4LDK(102.87㎡)
西 俊之